Περίληψη

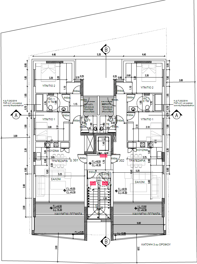
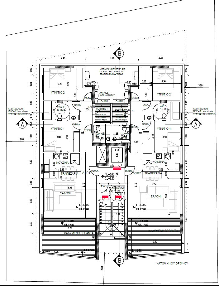
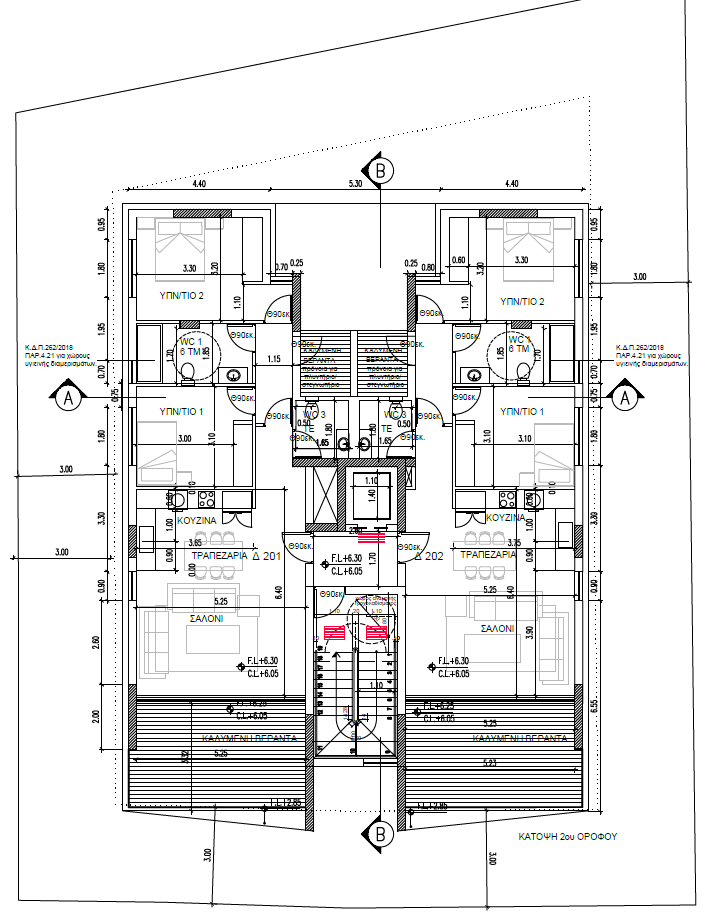
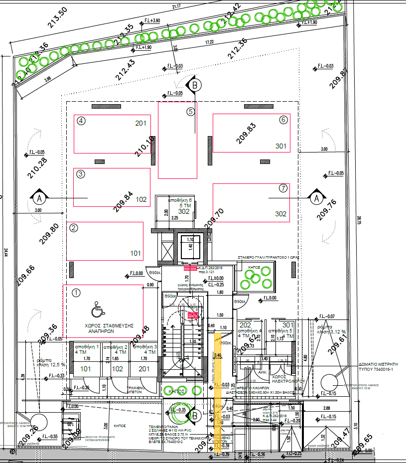
Έξι μοντέρνα και πολυτελή διαμερίσματα που βρίσκονται σε μια προνομιακή περιοχή της Λευκωσίας, στον Δήμο Λατσιών με εύκολη πρόσβαση στον αυτοκινητόδρομο και σε όλες τις ανέσεις. Μοναδικά σχεδιασμένο με όμορφη ανοιχτή θέα σε χώρο πρασίνου, μοντέρνα μινιμαλιστική αρχιτεκτονική και κατασκευασμένο με άριστη ποιότητα υλικών. Η οικοδομή βρίσκεται στην οδό Δραγατσανίου. Η ανάπτυξη θα γίνει σε οικόπεδο 552 τετραγωνικών μέτρων και είναι τριόροφη οικοδομή. Ο κάθε όροφος θα αποτελείται από δύο διαμερίσματα δύο υπνοδωματίων, ανελκυστήρα και κλιμακοστάσιο. Το ισόγειο θα αποτελείται από ιδιόκτητους χώρους στάθμευσης και αποθήκες. Σε κάθε διαμέρισμα αναλογεί ένας χώρος στάθμευσης και μία αποθήκη.

Έκταση

552 τ.μ.

Τύπος

Πολυκατοικία

Τοποθεσία

Λατσιά, Λευκωσία, Κύπρος

Έτος παράδοσης

2025

Ανέσεις

Επιλέξαμε την προνομιακή τοποθεσία και σας δίνουμε την ευκαιρία να σχεδιάσετε το δικό σας σπίτι!
Επιλέξτε το χαρακτήρα, το μέγεθος και διαμορφώστε το δικό σας χώρο.

Ενεργειακή κλάση Α

Θερμομονωτικά Υλικά

Υποδαπέδια Θέρμανση

Ηλεκτρικά ρολά

Θυροτηλέφωνο

Φωτοβολταϊκά 2 KwH

Πρόνοια φορτιστή για ηλεκτρικό αυτοκίνητο

Γρανίτες στους πάγκους

Σχέδια

  • Ιδιόκτητος χώρος στάθμευσης
  • Αυτόματες πόρτες εισόδου χώρου στάθμευσης
  • Ελεγχόμενη είσοδος με θυροτηλεόραση
  • Ιδιόκτητη αποθήκη
  • Πρόνοια φορτιστή για ηλεκτρικό αυτοκίνητο
  • Διαμερίσματα δύο υπνοδωματίων
  • 2Kwh Σύστημα φωτοβολταϊκών
  • Ολοκληρωμένο σύστημα ενδοδαπέδιας θέρμανσης
  • Ενεργειακή απόδοση Α+
  • Θερμομονωτικά αλουμίνια
  • Ελεγχόμενη είσοδος για ασφάλεια
  • Ηλεκτρικά shutter
  • Θερμοπρόσοψη εξωτερικά
  • Εντοιχισμένες τουαλέτες
  • Γρανίτες στους πάγκους
  • Διαμερίσματα δύο υπνοδωματίων
  • 2Kwh Σύστημα φωτοβολταϊκών
  • Ολοκληρωμένο σύστημα ενδοδαπέδιας θέρμανσης
  • Ενεργειακή απόδοση Α+
  • Θερμομονωτικά αλουμίνια
  • Ελεγχόμενη είσοδος για ασφάλεια
  • Ηλεκτρικά shutter
  • Θερμοπρόσοψη εξωτερικά
  • Εντοιχισμένες τουαλέτες
  • Γρανίτες στους πάγκους
  • Διαμερίσματα δύο υπνοδωματίων
  • 2Kwh Σύστημα φωτοβολταϊκών
  • Ολοκληρωμένο σύστημα ενδοδαπέδιας θέρμανσης
  • Ενεργειακή απόδοση Α+
  • Θερμομονωτικά αλουμίνια
  • Ελεγχόμενη είσοδος για ασφάλεια
  • Ηλεκτρικά shutter
  • Θερμοπρόσοψη εξωτερικά
  • Εντοιχισμένες τουαλέτες
  • Γρανίτες στους πάγκους

* Κάντε κλικ για μεγαλύτερη προβολή

Διαθεσιμότητα

Διαμέρισμα Υπνοδωμάτια Εμβαδόν κατοικίας (m2) Καλυμμένες Βεράντες (m2) Εμβαδόν Τεμαχίου (m2) Διαθεσιμότητα
101
2
82.5
19
101.5
Πωλήθηκε
102
2
82.5
19
101.5
Πωλήθηκε
201
2
82.5
19
101.5
Διαθέσιμο
202
2
82.5
19
101.5
Πωλήθηκε
301
2
82.5
22
104.5
Πωλήθηκε
302
2
82.5
22
104.5
Πωλήθηκε

Τοποθεσία

Διεύθυνση

Δραγατσανίου,
Λατσιά, Λευκωσία, Κύπρος

Μεταφορά

9min

Mall of Cyprus

2min

Υπεραγορά

4min

Στάδιο ΓΣΠ

14min

Πανεπιστήμιο

9min

Νοσοκομείο

10min

Πάρκο